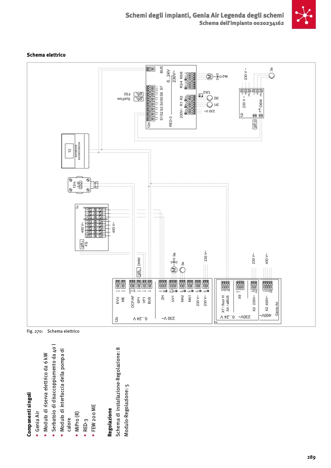
Schema elettrico

Fig. 270:

Schema elettrico

l

0

4

i

d

8

:

e

W

k

a

d

a

p

n

o

i

6

a

o

t

n

m

o

p

z

a

l

d

o

c

e

m

a

a

l

o

g

e

i

r

t

i

p

e

d

R

-

e

i

e

l

e

o

c

a

i

c

n

o

i

5

:

e

l

o

g

a

v

r

e

a

s

i

a

f

r

e

z

a

l

n

o

i

z

n

i

s

s

i

r

d

i

d

t

n

i

E

a

t

s

a

l

o

i

t

n

r

i

i

d

o

i

i

d

)

R

M

0

e

n

n

i

g

e

e

n

o

A

a

i

o

l

u

o

t

a

b

o

l

u

e

r

(

o

r

3

-

0

2

o

i

z

a

d

a

R

-

o

l

p

m

n

e

G

d

o

M

r

e

S

d

o

M

o

l

a

c

P

i

M

D

E

R

W

E

F

l

o

g

m

e

h

u

d

o

o

C

e

R

c

S

M

Schemi degli impianti, Genia Air Legenda degli schemi

Schema dell’impianto 0020234162

289