Istruzioni di montaggio delle cappe a scomparsa

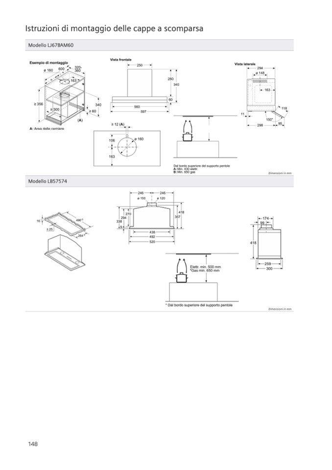
Modello LJ67BAM60

Esempio di montaggio

320-

360

Vista frontale

≥ 12 (A)

250

560

597

Vista laterale

ø 160

=

600

=

294

ø 148

163

280

340

0

≥ 356

≥ 300

A: Area delle cerniere

340

≥ 60

11

298

118

150°

95

Dimensioni in mm

6

163

(A)

ø 160

163

106

Modello LB57574

A: Passaggio del cavo

246

ø 150

246

ø 120

Dal bordo superiore del supporto pentole

A: Min. 430 elettr.

B: Min. 650 gas

357

418

Elettr. min. 500 mm

*Gas min. 650 mm

* Dal bordo superiore del supporto pentole

-3

270

294

338

9

174

99

259

300

Dimensioni in mm

16

496

264-3

≥ 25

438

492

520

418

148