Istruzioni di montaggio delle cappe a scomparsa

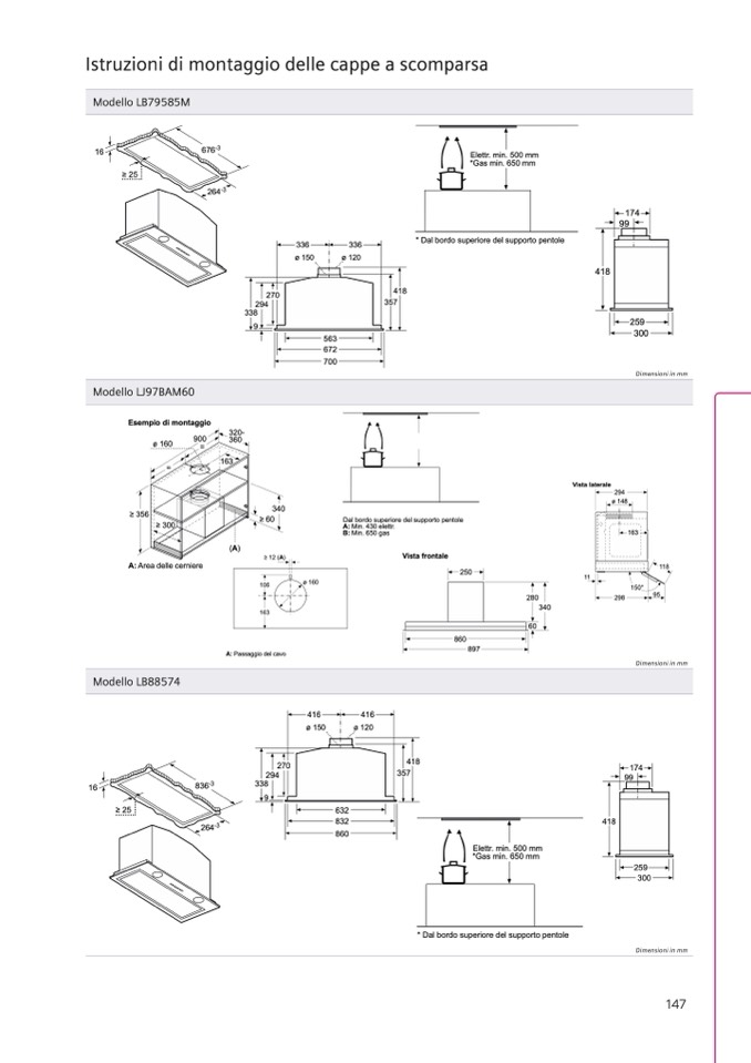
Modello LB79585M

16

≥ 25

676-3

264-3

Elettr. min. 500 mm

*Gas min. 650 mm

* Dal bordo superiore del supporto pentole

336

ø 150

336

ø 120

174

99

418

259

300

Dimensioni in mm

270

294

338

9

163

(A)

A: Passaggio del cavo

270

294

338

9

418

357

563

672

700

Modello LJ97BAM60

Esempio di montaggio

900

=

320-

360

ø 160

=

≥ 356

340

≥ 60

≥ 12 (A)

Dal bordo superiore del supporto pentole

A: Min. 430 elettr.

B: Min. 650 gas

Vista frontale

Vista laterale

294

ø 148

11

150°

≥ 300

A: Area delle cerniere

250

860

897

118

95

Dimensioni in mm

174

99

259

300

Dimensioni in mm

163

ø 160

163

106

280

340

60

298

Modello LB88574

16

416

ø 150

416

ø 120

418

357

≥ 25

836-3

264-3

632

832

860

418

Elettr. min. 500 mm

*Gas min. 650 mm

* Dal bordo superiore del supporto pentole

147