CANALIZZATA A TUTTA ARIA ESTERNA

Dimensionali

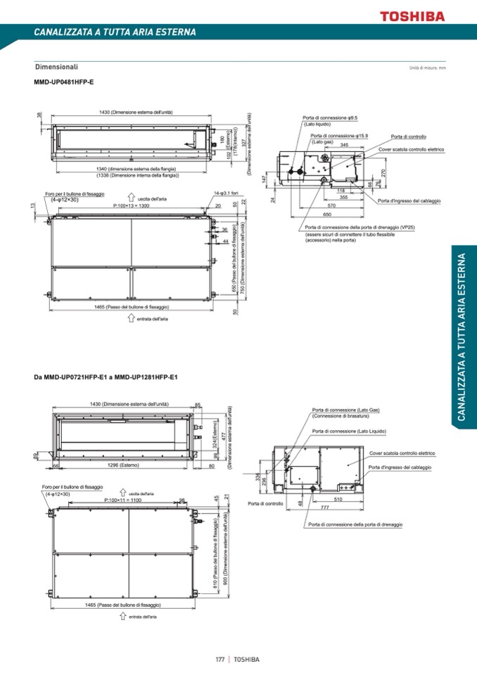
MMD-UP0481HFP-E

Porta di connessione φ9.5

(Lato liquido)

Foro per il bullone di fissaggio

(4-φ12×30)

Porta di connessione φ15.9

(Lato gas)

345

6

Porta di c

(essere sicuri di connettere il tubo flessibile

(accessorio) nella porta)

1465 (Passo del bullone di fissaggio)

entrata dell'aria

Da MMD-UP0721HFP-E1 a MMD-UP1281HFP-E1

Unità di misura: mm

Porta di controllo

Cover scatola controllo elettrico

Porta d'ingresso del cablaggio

66

Foro per il bullone di fissaggio

(4-φ12×30)

uscita dell'aria

P:100×11 = 1100

Cover scatola controllo elettrico

Porta d'ingresso del cablaggio

1430 (Dimensione esterna dell'unità)

(1338 (Dimensione interna della flangia))

Porta di connessione φ9.5

(Lato liquido)

Porta di connessione φ15.9

(Lato gas)

345

uscita dell'aria

Porta di controllo

14-φ3.1 fori

20

P:100×13 = 1300

1430 (Dimensione esterna dell'unità)

1296 (Esterno)

uscita dell'aria

P:100×11 = 1100

85

80

66

1296 (Esterno)

1465 (Passo del bullone di fissaggio)

entrata dell'aria

98

Porta di controllo

510

177

TOSHIBA

Porta di connessione della porta di drenaggio (VP25)

(essere sicuri di connettere il tubo flessibile

(accessorio) nella porta)

Porta di connessione (Lato Gas)

(Connessione di brasatura)

Foro per il bullone di fissaggio

(4-φ12×30)

Porta di connessione (Lato Liquido)

777

1430 (Dimensione esterna dell'unità)

85

98

Porta di connessione della porta di drenaggio

1465 (Passo del bullone di fissaggio)

entrata dell'aria

1340 (dimensione esterna della flangia)

650

118

355

570

118

355

Cover scatola

6

6

7

6

2

7

0

controllo elettrico

6

5

0

(

P

a

s

s

o

d

e

l

b

u

l

l

o

n

e

d

i

f

i

s

s

a

g

g

i

o

)

7

5

0

(

D

i

m

e

n

s

i

o

n

e

e

s

t

e

r

n

a

d

e

l

l

'

u

n

i

t

a

̀

)

36

44

570

50

Porta d'ingres

onnessione della porta di drenaggio (V

so del cablaggio

P25)

3

2

4

(

E

s

t

e

r

n

o

)

4

5

2

1

4

8

9

9

4

7

7

(

D

i

m

e

n

s

i

o

n

e

e

s

t

e

r

n

a

d

e

l

l

'

u

n

i

t

a

̀

)

5

0

5

0

2

2

2

4

6

6

7

6

2

7

0

1

8

0

1

0

2

(

E

s

t

e

r

n

o

)

(

1

7

8

(

I

n

t

e

r

n

o

)

)

3

3

6

2

3

6

3

2

7

(

D

i

m

e

n

s

i

o

n

e

e

s

t

e

r

n

a

d

e

l

l

'

u

n

i

t

a

̀

)

1

4

7

8

9

1

3

8

9

C

A

N

A

L

I

Z

Z

A

T

A

A

T

U

T

T

A

A

R

I

A

E

S

T

E

R

N

A

3

8

8

1

0

(

P

a

s

s

o

d

e

l

b

u

l

l

o

n

e

d

i

f

i

s

s

a

g

g

i

o

)

9

0

0

(

D

i

m

e

n

s

i

o

n

e

e

s

t

e

r

n

a

d

e

l

l

'

u

n

i

t

a

̀

)

2

4