POMPE DI CALORE / 

APPROFOND

IMENTO TECNIC

O

Unit : m

m

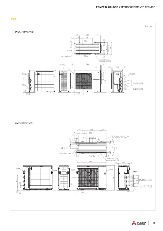
PXZ-4F75VG/VG

2

PXZ-5F85VG/VG

2

P

X

85