Schemi degli impianti, Genia Air Legenda degli schemi

Schema dell’impianto 0020177933

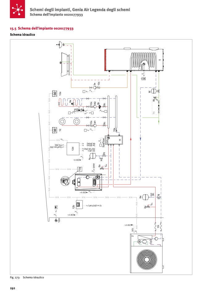
15.5 Schema dell’impianto 0020177933

Schema idraulico

Fig. 273: Schema idraulico

292