Schemi degli impianti, Genia Air Legenda degli schemi

Schema dell’impianto 0020185687

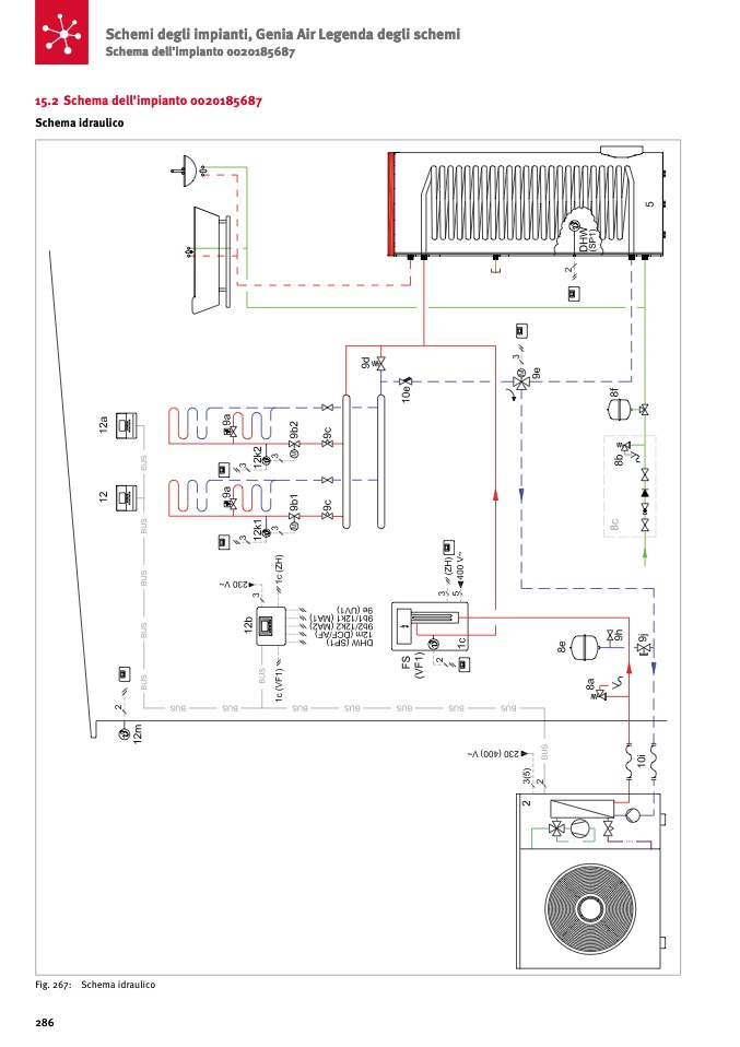
15.2 Schema dell’impianto 0020185687

Schema idraulico

Fig. 267: Schema idraulico

286