0020284518

Informazioni di prodotto per GeniaAir Tek HA ...-7.2 OS 230V B3

Schemi di impianto e schemi elettrici di base

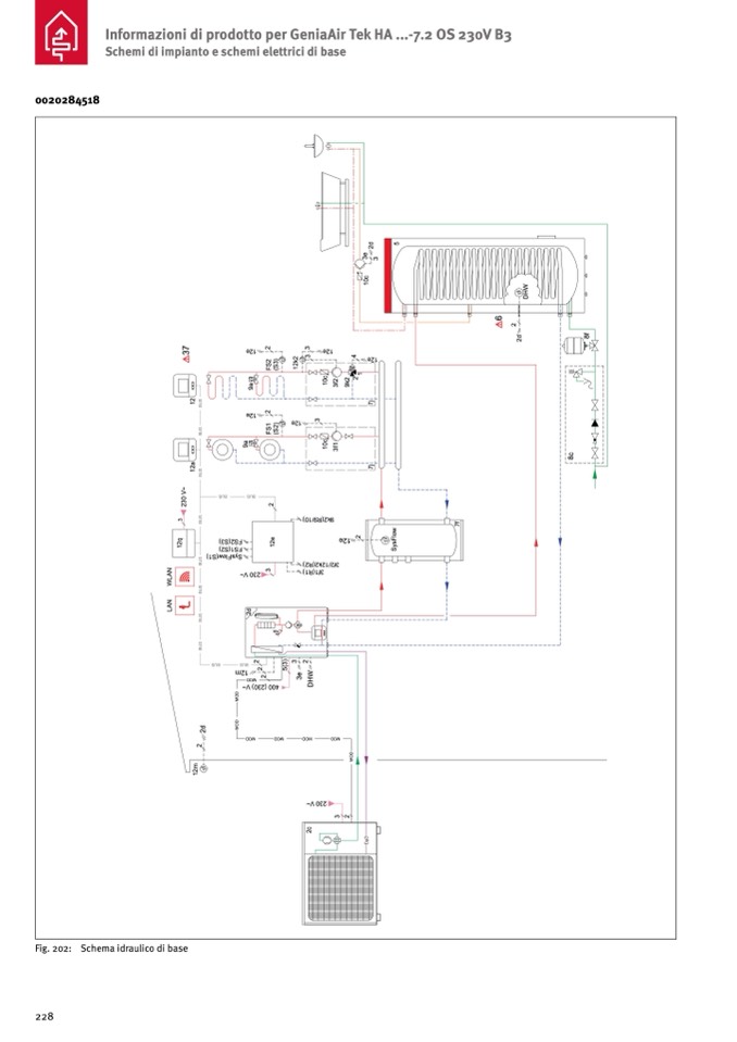
Fig. 202:

Schema idraulico di base

228

7

3

~

V

S

U

B

S

U

B

0

3

2

2

)

0

1

/

9

R

(

2

k

9

3

S

U

B

f

7

e

2

1

2

w

o

l

q

2

1

e

2

1

F

s

y

)

3

S

(

2

S

F

)

2

S

(

1

S

F

)

1

S

(

w

o

l

F

s

y

S

S

S

U

B

)

2

R

(

2

k

2

1

/

2

f

3

N

3

~

V

0

3

2

)

1

R

(

1

f

3

A

L

W

S

U

B

6

2

d

2

f

8

S

U

B

N

A

L

S

d

2

U

B

S

U

B

M

e

2

1

e

2

1

2

3

2

3

k

)

2

3

4

e

2

1

S

F

S

(

2

1

M

1

c

0

2

2

2

a

9

1

f

3

k

9

2

1

S

U

B

j

7

e

2

1

2

e

2

1

1

)

2

3

S

U

B

S

F

S

(

a

9

1

f

3

c

0

1

S

U

B

S

U

B

2

)

3

3

2

m

2

1

(

D

O

M

2

2

5

e

3

W

~

V

)

0

3

2

(

0

0

4

D

H

D

D

d

2

O

M

D

O

M

D

O

M

D

O

M

D

O

M

O

M

2

D

O

M

m

2

1

~

V

0

3

2

3

2

c

2

d

2

5

e

3

3

c

0

1

W

H

D

8

c

a

2

1

S

j

7

U

B

S

U

B