8

D

3V

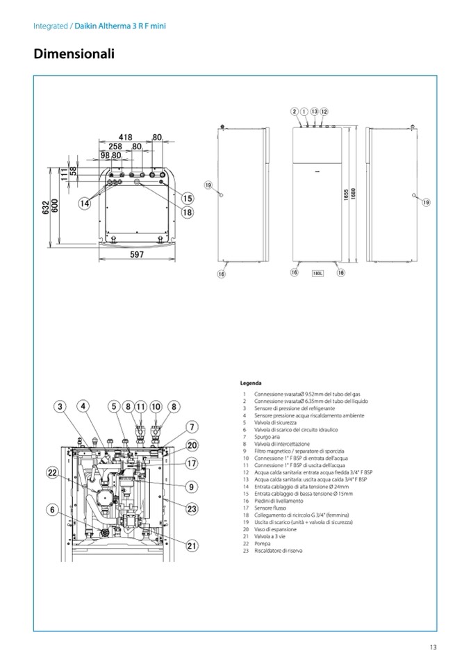
Legenda

7

20

17

9

23

21

19

Uscita d

7

20

Integrated / Daikin Altherma 3 R F mini

17

22

418

80

258 80

98 80

1

Conness

2

Conness

3

Sensore

4

Sensore

5

Valvola d

6

Valvola d

7

Spurgo a

8

Valvola

9

Filtro ma

10

Conness

11

Conness

12

Acqua c

13

Acqua c

14

Entrata c

15

Entrata c

16

Piedini d

17

Sensore

18

Collegam

Connessione svasataØ 6

Valvola

Dimensionali

15

22

11 Connessione 1" F BSP di uscita dell'acqua

12 Acqua calda sanitaria: entrata acqua fredda 3/4" F BSP

13 Acqua calda sanitaria: uscita acqua calda 3/4" F BSP

14 Entrata cablaggio di alta tensione Ø 24mm

15 Entrata cablaggio di bassa tensione Ø 15mm

98 80

14

19

Sensore di pressione del refrige

Sensore pressione acqua riscal

Valvola di sicurezza

Valvola di scarico del circuito id

Spurgo aria

19

Valvola di intercettazione

Filtro magnetico / separatore di

Connessione 1" F BSP di entra

Connessione 1" F BSP di uscita

Acqua calda sanitaria: entrata a

Acqua calda sanitaria: uscita ac

418

80

258 80

1

2

3

4

5

6

7

8

9

10

11

12

13

20

Vaso di

Connessione svasataØ 9.52mm

2 1 13 12

effettuata in base alle leggi applicabili.

3

4

5

8111

0

8

1

Connessione svasataØ 9.52mm del tubo del gas

2

Connessione svasataØ 6.35mm del tubo del liquido

3

Sensore di pressione del refrigerante

4

Sensore pressione acqua riscaldamento ambiente

5

Valvola di sicurezza

9

6

23

16

4 Piedini di livellamento

15

16

21

effettuata in base alle leggi applicabili.

597

9

6

23

14

18

21

597

2 1 13 12

15

18

7

20

17

6

Valvola di scarico del circuito idraulico

180L

16

L'installazione tipica in loco deve essere

Per gli esempi, consultare la

guida di riferimento per l'installazione.

16

180L

guidadiriferim

C

en

o

to

ll

p

e

e

g

rl

a

'in

m

sta

e

lla

n

zi

t

o

o

ne

d

.

iricircoloG3/4"

19

Uscita di scarico (unità + valvol

20

Vaso di espansione

21

Valvola a 3 vie

22

Pompa

23

Riscaldatore di riserva

7

Spurgo aria

418

19

80

8

Valvola d

2i 5in8tercetta8z0ione

98 80

16

14

Entrata cablaggio di alta Vteitinustiiloizzn

16

9

Filtro magnetico / separatore di sporcizia

10 Connessione 1" F BSP di entrata dell'acqua

17 Sensore flusso

18

18 Collegamento di ricircolo G 3/4" (femmina)

19 Uscita di scarico (unità + valvola di sicurezza)

20 Vaso di espansione

21 Valvola a 3 vie

22 Pompa

Viti utilizzate con l'unità:

T25

23 Riscaldatore di riserva

2 1 13 12

597

15

Entrata cablaggio di bassa tens

L'installa1z6ione tipica in loco deve essere

18

Piedini di livellamento

17

Sensore flusso

Per gli esempi, consultare la

T25

13

21

.35mm

Pompa

22

23

Riscalda

6

3

2

6

0

0

1

1

1

5

8

1

6

5

5

1

6

8

0

6

3

2

6

0

0

1

6

5

5

1

6

8

0

1

1

1

5

8

6

3

2

6

0

0

1

1

1

5

8