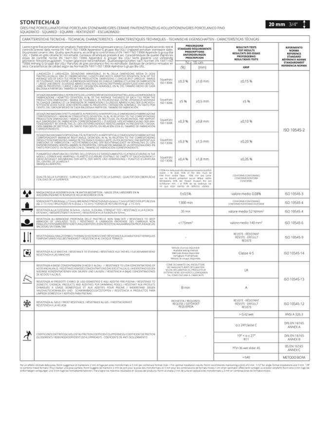
CARATTERISTICHE TECNICHE - TECHNICAL CHARACTERISTICS - CARACTERISTIQUES TECHNIQUES - TECHNISCHE EIGENSCHAFTEN - CARACTERÍSTICAS TÉCNICA

S

±0,15

%

±5

%

STONTECH/4.

0

GRES FINE PORCELLANATO/FINE PORCELAIN STONEWARE/GRES CERAME FIN/FEINSTEINZEUG-KOLLEKTIONEN/GRES PORCELANICO FIN

O

SQUADRATO - SQUARED - EQUARRI - REKTIFIZIERT - ESCUADRADO

PRESCRIZIONE

STANDARD REQUIREMENT

S

PRESCRIPTIONS

Lastre in gres fine porcellanato non smaltato. Piastrelle di ceramica pressate a secco. Caratteristiche di qualità secondo i test d

i

n

t

r

o

llo previsti dalla norma EN 14411-ISO 13006 Appendice G gruppo BIa UGL/ Unglazed porcelain stoneware slabs

.

y

-

p

r

essed ceramic tiles. Quality speci

fications, according to control tests of EN 14411-ISO 13006 Appendix G group BI

a

L

.

/

Dalles en grès cérame

fin non émaillé. Carreaux céramiques pressés à sec. Caractéristiques de qualité d’aprés le

s

s

a

i

s

de contrôle norme EN 14411-ISO 13006 Appendice G groupe BIa UGL/ Nicht glasierte und vollständi

g

s

i

n

t

erte Feinsteinzeugplatten. Trocken gepresste Keramikfliesen. Qualitätseigenschaften nach Normen EN 14411-ISO

RISULTATI TEST

S

TEST RESULTS

RESULTATS DES ESSAI

S

ANFORDERUNGE

N

PRÜFERGEBNI

S

PRESCRIPCIO

N

RESULTADOS TESTS

N ≥ 15 cm

13006 Anhang G Gruppe BIa UGL/ Planchas de gres porcélanico

fino no esmaltado. Baldosas de cerámica rensadas e

n

c

o

.

Características de calidad según las Normas EN 14411-ISO 13006 Apéndice G grupo BIa UGL.

(%)

(mm)

GRI

P

LUNGHEZZA E LARGHEZZA: DEVIAZIONE AMMISSIBILE, IN %, DELLA DIMENSIONE MEDIA DI OGN

I

PIASTRELLA DALLA DIM. DI FABBRICAZIONE / LENGTH AND WIDTH: ADMITTED DEVIATION, IN %, OF THE

AVERAGE SIZE OF EACH TILE FROM THE PRODUCTION DIMENSIONS / LONGUEUR ET LARGEUR : MARG

E

Squadrat

o

ISO 13006

±0,3 %

±1,0 mm

DE TOLÉRANCE, EN %, ENTRE LA DIMENSION MOYENNE DE CHAQUE CARREAU ET LA DIM. DE FABRICATIO

N

L

Ä

N

GE UND BREITE: ZULÄSSIGE ABWEICHUNG DES DURCHSCHNITTMAßES JEDER FLIESE VOM HERSTEL

-

LMAß IN PROZENTEN / LARGO Y ANCHO: DESVIACIÓN ADMISIBLE, EN %, DEL TAMAÑO MEDIO DE CAD

A

A

L

D

O

SA A PARTIR DEL TAMAÑO DE FABRICACIÓN

.

DEVIAZIONE AMMISSIBILE, IN PERCENTO, DELLO SPESSORE MEDIO DI OGNI PIASTRELLA DALLA DIMENSIONE D

I

Squadrat

o

FABBRICAZIONE / ADMITTED DEVIATION, IN %, OF THE AVERAGE THICKNESS OF EACH TILE FROM TH

E

R

O

D

U

CTION DIMENSIONS / MARGE DE TOLÉRANCE, EN POURCENTAGE, ENTRE L’ÉPAISSEUR MOYENN

E

E

C

H

AQUE CARREAU ET LA DIMENSION DE FABRICATION / ZULÄSSIGE ABWEICHUNG DER DURCHSCH

-

ISO 13006

±5 %

±0,5 mm

NITTSDICKE JEDER FLIESE VOM HERSTELLMAß IN PROZENTEN / DESVIACIÓN ADMISIBLE, EN TANTO PO

R

I

E

N

T

O, DEL GROSOR MEDIO DE CADA BALDOSA A PARTIR DEL TAMAÑO DE FABRICACIÓN .

DEVIAZIONE MASSIMA DI RETTILINEARITÀ, IN PERCENTO, IN RAPPORTO ALLE DIMENSIONI DI FABBRICAZIONE

CORRISPONDENTI / MAXIMUM STRAIGHTNESS DEVIATION, IN %, IN RELATION TO THE CORRESPONDIN

G

P

R

O

D

U

CTION DIMENSIONS / MARGE DE TOLÉRANCE DE RECTITUDE, EN POURCENTAGE, PAR RAPPOR

T

A

U

X

D

IMENS

IONS DE FABRICATION CORRESPONDANTES / ZULÄSSIGE HÖCHSTABWEICHUNG DER KAN-

Squadrat

o

TENGERADHEIT IM VERHÄLTNIS ZU DEN ENTSPRECHENDEN HERSTELLMAßEN IN PROZENTEN / DESVIA

-

ISO 13006

±0,3 %

±0,8 mm

CIÓN MÁXIMA DE RECTITUD, EN TANTO POR CIENTO, EN RELACIÓN CON EL TAMAÑO DE FABRICACIÓN

CORRESPONDIENTE

.

DEVIAZIONE MASSIMA DI ORTOGONALITÀ, IN PERCENTO, IN RAPPORTO ALLE DIMENSIONI DI FABBRICAZION

E

Squadrat

o

CORRISPONDENTI MAXIMUM RIGHT-ANGLE DEVIATION, IN %, IN RELATION TO THE CORRESPONDIN

G

P

R

O

D

U

CTION DIMENSIONS / MARGE DE TOLÉRANCE D’ANGULARITÉ, EN POURCENTAGE, PAR RAPPORT AU

X

D

I

M

E

S

IONS DE FABR

ICATION / HÖCHSTABWEICHUNG DER RECHTWINKLIGKEIT IM VERHÄLTNIS ZU DE

N

ISO 13006

±0,3 %

±1,5 mm

ENTSPRECHENDEN HERSTELLMAßEN IN PROZENTEN / DESVIACIÓN MÁXIMA DE LA ORTOGONALIDAD, E

N

T

A

N

T

O

POR CIENTO, EN RELACIÓN CON EL TAMAÑO DE FABRICACIÓN CORRESPONDIENTE

.

PLANARITÀ (CURVATURA DEL CENTRO, DELLO SPIGOLO E SVERGOLAMENTO) / FLATNESS (CURVING IN TH

E

M

I

D

D

L

E, CORNER AND WARPING) / PLANÉITÉ (COURBURE CENTRALE, DE L’ARÊTE ET GAUCHISSEMENT)

/

E

B

E

N

F

LÄCHIGKEIT (KRÜMMUNG DER MITTE, DER KANTE UND VERWINDUNG) / PLANITUD (CURVATUR

A

Squadrat

o

ISO 13006

±0,4 %

±1,8 mm

DEL CENTRO, DE LA ARISTA

Y

ABARQUILLAMIENTO)

.

35 min

20 mm 3/4”

RIFERIMENTO

NORMA

REFERENC

E

STANDAR

D

RÉFÉRENCE NORME

STANDARDWER

T

REFERENCIA NORMA

±0,10

%

ISO 10545-

2

±0,20

%

±0,35

%

QUALITÀ DELLA SUPERFICIE - SURFACE QUALITY / QUALITÉ DE LA SURFACE - QUALITÄT DER OBERFLÄCHE

/ CALIDAD DE LA SUPERFICIE

.

Il 95% min delle piastrelle deve essere esente da difetti

visibili. / At least 95% of the tiles must be

free from visible flaws. 95% min des carre-

aux ne doivent présenter aucun défaut visible.

Mindestens 95% der Fliesen müssen frei von

sichtbaren mín. / el 95% de las baldosas tie-

ne que estar exento de defectos visibles

.

CONFORME/CONFORMING

CONFORME/KONFOR

M

CONFORME

.

MASSA D’ACQUA ASSORBITA IN % / % WATER ABSORPTION - MASSE D’EAU ABSORBÉE EN %

WASSERAUFNAHME IN % MASA DE AGUA ABSORBIDA EN %

E≤0,5%

valore medio 0,08%

ISO 10545-

3

FORZA DI ROTTURA IN N (sp. ≥ 7,5 mm) - BREAKING STRENGTH IN N (thickness ≥ 7,5 mm) / FORCE DE RUPTURE EN

N

(

é

p

.

7,5 mm) / BRUCHLAST IN N (Dicke ≥ 7,5 mm) / FUERZA DE ROTURA EN N (gr. ≥ 7,5 mm)

1300 min

CONFORME/KONFORM/CONFORME

CONFORME/CONFORMIN

G

ISO 10545-4

RESISTENZA ALL’ABRASIONE PROFONDA DELLE PIASTRELLE NON SMALTATE / RESISTANCE TO DEE

P

ABRASION OF UNGLAZED TILES / RÉSISTANCE À L’ABRASION PROFONDE DES CARREAUX NON

ÉMAILLÉS /TIEFENABRIEBFESTIGKEIT UNGLASIERTER FLIESEN / RESISTENCIA A LA ABRASIÓN PROFUNDA DE LAS

BALDOSAS SIN ESMALTA

R

<175mm3

RESISTENZA AGLI SBALZI TERMICI / THERMAL SHOCKS RESISTANT / RÉSISTANCE AUX VARIATIONS THERMIQUES

T

E

M

P

ERATURWECHSELBESTÄND

IGKEIT / RESISTENCIA AL CHOQUE TÉRMICO

.

-

RESISTENZA ALLA FLESSIONE IN N/mm2 / N/mm2 FLEXURAL STRENGHT TEST / RÉSISTANCE A LA FLEXIO

N

EN N/mm2 / BIEGEFESTIGKEIT IN N/mm2 / RESISTENCIA A LA FLEXIÓN EN N/mm

2

Metodo di prova disponibil

e

Available testing method

Méthode d’essai disponibl

e

Verfügbare Prüfmethode

Método de ensayo disponibl

e

valore medio 52 N/mm2

ISO 10545-4

valore medio 140 mm3

ISO 10545-6

RESISTE - RÉSISTANT

RÉSISTE - ERFÜLL

T

RESIST

E

ISO 10545-9

RESISTENZA ALLE MACCHIE / RESISTANCE TO STAINING / RÉSISTANCE AUX TACHES / FLECKENABWEISEN

D

RESISTENCIA A LAS MANCHA

S

Classe 4-5

ISO 10545-14

RESISTENZA A BASSE CONCENTRAZIONI DI ACIDI E ALCALI. / RESISTANCE TO LOW CONCENTRATIONS O

F

ACIDS AND ALKALIS. / RESISTANCE A BASSES CONCENTRATIONS D’ACIDES ET ALCALIS. / WIDERSTAND GEGE

N

NIEDRIGE KONZENTRATIONEN VON SÄUREN UND LAUGEN. / RESISTENCIA A BAJAS CONCENTRACIONE

S

DE ACIDOS Y ALCALIS

.

COME DICHIARATO DAL PRODUTTORE

SEE MANUFACTURER’S DECLARATION

SELON DÉCLARATION DU PRODUCTEU

R

ENTSPRECHEND DER HERSTELLERANGABEN

TAL COMO DECLARA EL FABRICANT

E

LA

ISO 10545-13

RESISTENZA AI PRODOTTI CHIMICI DI USO DOMESTICO E AGLI ADDITIVI PER PISCINA / RESISTENCE TO

DOMESTIC CHEMICAL PRODUCTS AND ADDITIVES FOR SWIMMING POOLS / RÉSISTANT AUX PRODUIT

S

CHIMIQUES À USAGE DOMESTIQUE ET AUX ADDITIFS POUR PISCINE / WIDERSTAND GEGE

N

HAUSHALTSCHEMIKALIEN UND SCHWIMMBADZUSATZSTOFFEN / RESISTENCIA A PRODUCTOS PAR

A

LIMPIEZA DOMESTICA Y ADITIVOS PARA PISCINAS

B min

A

RESISTENZA AL GELO / FROST RESISTANCE / RÉSISTANCE AU GEL / FROSTSICHERHEIT

RESISTENCIA A LA HELAD

A

RICHIESTA / REQUIRE

D

REQUISE / GEFORDET

REQUERIDA

RESISTE - RÉSISTANT

RÉSISTE - ERFÜLL

T

RESIST

E

ISO 10545-12

> 0,42 wet

ANSI A 326.

3

α ≥ 24°classe C

DIN EN 16165

ANNEX

A

COEFFICIENTE D’ATTRITO (SCIVOLOSITÀ) / FRICTION COEFFICIENT (SLIPPERINESS) / COEFFICIENT DE FRICTIO

N

(GLISSEMENT) / REIBUNGSKOEFFIZIENT (SCHLÜPFRIGKEIT) - COEFICIENTE DE ANTI DESLIZAMIENTO

-

19° < α ≤ 27

°

R11

DIN EN 16165

ANNEX

B

PTV>36 wet slider 4S

BS EN 1616

5

ANNEX

C

> 0,40

METODO BCR

A

Per un effetto ottimale della posa,

florim suggerisce di mantenere 2 mm di fuga per pose monoformato e 3 mm per combinare formati misti / For optimal installation results,

florim recommends maintaining a joint of 2 mm 1/12” for single format installations and 3 mm 1/8”

to combine mixed formats / Pour réaliser une pose parfaite,

florim suggére de mantenir 2 mm de joint pour la pose des monoformats, et 3 mm pour les combinaisons de formats mixtes / Um einen optimalen effekt beim verlegen zu erzielen empfehlt

florim eine 2 mm fuge bei

einformatigen verlegungen und 3 mm fuge bei formatkombinationen / Para lograr los máximos resultados en la posa del producto, florim aconseja 2 mm de junta en aplicaciones monoformato y 3 mm en combinaciones de formatos mixtos .