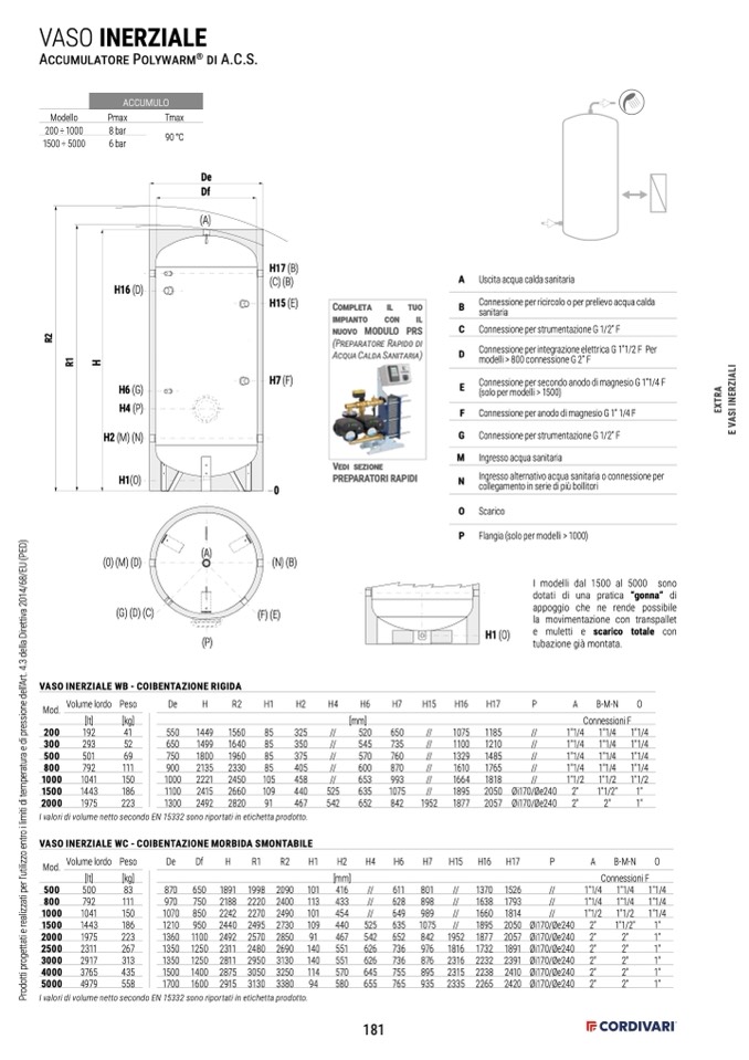
VASO INERZIALE

Accumulatore Polywarm

®

di A.C.S.

Modello

200 ÷ 1000

1500 ÷ 5000

Pmax

8 bar

6 bar

Tmax

90 °C

De

(0) (M) (D)

(G) (D) (C)

H16 (D)

(A)

(P)

(N) (B)

(F) (E)

I modelli dal 1500 al 5000 sono

dotati di una pratica “gonna” di

appoggio che ne rende possibile

la movimentazione con transpallet

e muletti e scarico totale con

tubazione già montata.

H6 (G)

VASO INERZIALE WB - COIBENTAZIONE RIGIDA

H4 (P)

Mod.

Volume lordo Peso

De

H

R2

H1

H2

H4

H6

H7

H15

H16

H17

P

A

B-M-N

O

[lt]

[kg]

H2 (M) (N)

200

192

41

550

1449 1560

85

300

293

52

650

500

501

69

750

800

792

111

1000

1041

150

1500

1443

186

2000

1975

223

[mm]

325

//

520

650

//

1075 1185

//

350

//

545

735

//

1100 1210

//

375

//

570

760

//

1329 1485

//

Connessioni F

1"1/4 1"1/4 1"1/4

1"1/4 1"1/4 1"1/4

1"1/4 1"1/4 1"1/4

1"1/4 1"1/4 1"1/4

Mod.

Volumelordo Peso

De

[lt]

[kg]

Df

H

R1

R2

H1

H2

H4

H6

H7

H15

H16

H17

P

A

B-M-N

O

800

792

111

1000

1041

150

1500

1443

186

2000

1975

223

2500

2311

267

3000

2917

313

4000

3765

435

5000

4979

558

970 750 2188 2220 2400 113 433

//

628 898

//

1638 1793

//

1"1/4 1"1/4 1"1/4

900

1499 1640

85

1800 1960

85

2135 2330

85

405

//

600

870

//

1610 1765

//

2221 2450

105

458 0 //

653

993

//

1664 1818

//

1"1/2 1"1/2 1"1/2

H1(O)

1000

(A)

Vedi sezione

PREPARATORI RAPIDI

H17 (B)

(C) (B)

H15 (E)

H7 (F)

H1(O)

ConnessioneperintegrazioneelettricaG1”1/2F Per

D

modelli > 800 connessione G 2” F

E

Connessione per secondo anodo di magnesio G 1”1/4 F

(solo per modelli > 1500)

F Connessione per anodo di magnesio G 1” 1/4 F

G Connessione per strumentazione G 1/2” F

M Ingresso acqua sanitaria

N

Ingresso alternativo acqua sanitaria o connessione per

collegamento in serie di più bollitori

O Scarico

P Flangia (solo per modelli > 1000)

H17 (B)

(C) (B)

H15 (E)

H7 (F)

0

A Uscita acqua calda sanitaria

B

Connessione per ricircolo o per prelievo acqua calda

1100 2415 2660

109

440

525

635

1075

//

1895 2050 Øi170/Øe240 2"

1"1/2"

1"

1300 2492 2820

91

467

542

652

842

1952 1877 2057 Øi170/Øe240 2"

2"

1"

I valori di volume netto secondo EN 15332 sono riportati in etichetta prodotto.

VASO INERZIALE WC - COIBENTAZIONE MORBIDA SMONTABILE

(0) (M) (D)

(A)

(N) (B)

[mm]

500

500

83

870 650 1891 1998 2090 101 416

//

611 801

//

1370 1526

//

1"1/4 1"1/4 1"1/4

(G) (D) (C)

(F) (E)

1070 850 2242 2270 2490 101 454

//

649 989

//

1660 1814

//

1"1/2 1"1/2 1"1/4

1210 950 2440 2495 2730 109 440 525 635 1075

//

1895 2050 Øi170/Øe240 2"

1"1/2"

1"

1360 1100 2492 (2P5)70 2850 91

467 542 652 842 1952 1877 2057 Øi170/Øe240 2"

2"

1"

1350 1250 2311 2480 2690 140 551 626 736 976 1816 1732 1891 Øi170/Øe240 2"

2"

1"

1350 1250 2811 2950 3130 140 551 626 736 876 2316 2232 2391 Øi170/Øe240 2"

2"

1"

1500 1400 2875 3050 3250 114 570 645 755 895 2315 2238 2410 Øi170/Øe240 2"

2"

1"

1700 1600 2915 3130 3380 94

580 655 765 935 2335 2265 2420 Øi170/Øe240 2"

2"

1"

I valori di volume netto secondo EN 15332 sono riportati in etichetta prodotto.

181

sanitaria

C Connessione per strumentazione G 1/2” F

H1 (O)

Connessioni F

ACCUMULO

Df

(A)

R

1

H

H16 (D)

H6 (G)

H4 (P)

H2 (M) (N)

H1(O)

De

Df

Completa il tuo

impianto con il

nuovo MODULO PRS

(Preparatore Rapido di

Acqua Calda Sanitaria)

P

r

o

d

o

t

t

i

p

r

o

g

e

t

t

a

t

i

e

r

e

a

l

i

z

z

a

t

i

p

e

r

l

u

t

i

l

i

z

z

o

e

n

t

r

o

i

l

i

m

i

t

i

d

i

t

e

m

p

e

r

a

t

u

r

a

e

d

i

p

r

e

s

s

i

o

n

e

d

e

l

l

A

r

t

.

4

.

3

d

e

l

l

a

D

i

r

e

t

t

i

v

a

2

0

1

4

/

6

8

/

E

U

(

P

E

D

)

R

2

R

1

H

R

2

E

X

T

R

A

E

V

A

S

I

I

N

E

R

Z

I

A

L

I