Collettori per sistemi forzati

SCF-20/4B A

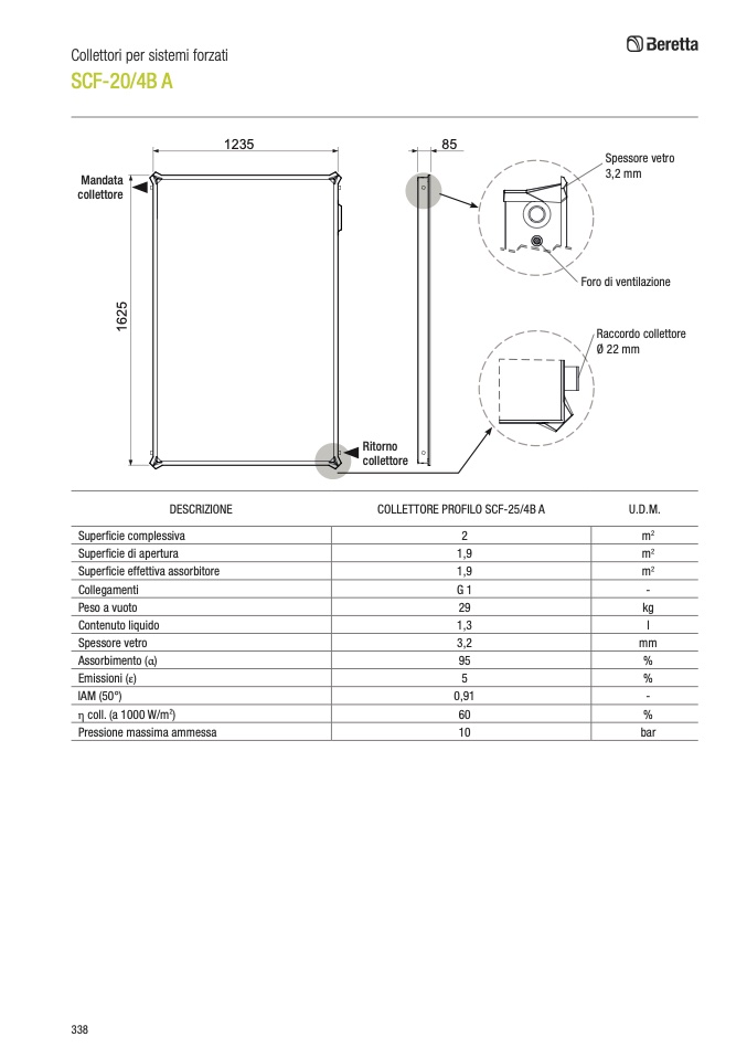
Mandata

collettore

1235

85

Spessore vetro

3,2 mm

Foro di ventilazione

Raccordo collettore

Ø 22 mm

U.D.M.

Superficie complessiva

Superficie di apertura

Superficie effettiva assorbitore

Collegamenti

Peso a vuoto

Contenuto liquido

Spessore vetro

Assorbimento (α)

Emissioni (ε)

IAM (50°)

η coll. (a 1000 W/m

2

)

Pressione massima ammessa

2

m

2

1,9

m

2

1,9

m

2

G1

-

29

kg

1,3

l

3,2

mm

95

%

5

%

0,91

-

60

%

10

bar

338

DESCRIZIONE

COLLETTORE PROFILO SCF-25/4B A

Ritorno

collettore

1

6

2

5