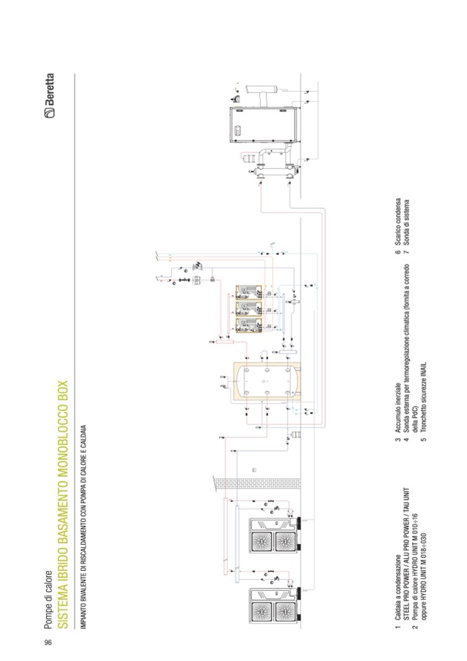
P

o

m

p

e

d

i

c

a

l

o

r

e

S

I

S

T

E

M

A

I

B

R

I

D

O

B

A

S

A

M

E

N

T

O

M

O

N

O

B

L

O

C

C

O

B

O

X

I

M

P

I

A

N

T

O

B

I

V

A

L

E

N

T

E

D

I

R

I

S

C

A

L

D

A

M

E

N

T

O

C

O

N

P

O

M

P

A

D

I

C

A

L

O

R

E

E

C

A

L

D

A

I

A

1

C

a

l

d

a

i

a

a

c

o

n

d

e

n

s

a

z

i

o

n

e

S

T

E

E

L

P

R

O

P

O

W

E

R

/

A

L

U

P

R

O

P

O

W

E

R

/

T

A

U

U

N

I

T

2

P

o

m

p

a

d

i

c

a

l

o

r

e

H

Y

D

R

O

U

N

I

T

M

0

1

0

÷

1

6

o

p

p

u

r

e

H

Y

D

R

O

U

N

I

T

M

0

1

8

÷

0

3

0

3

A

c

c

u

m

u

l

o

i

n

e

r

z

i

a

l

e

4

S

o

n

d

a

e

s

t

e

r

n

a

p

e

r

t

e

r

m

o

r

e

g

o

l

a

z

i

o

n

e

c

l

i

m

a

t

i

c

a

(

f

o

r

n

i

t

a

a

c

o

r

r

e

d

o

d

e

l

l

a

P

d

C

)

5

T

r

o

n

c

h

e

t

t

o

s

i

c

u

r

e

z

z

e

I

N

A

I

L

6

S

c

a

r

i

c

o

c

o

n

d

e

n

s

a

7

S

o

n

d

a

d

i

s

i

s

t

e

m

a

96