RAV-GV1601AT8P-E

(Unità: mm)

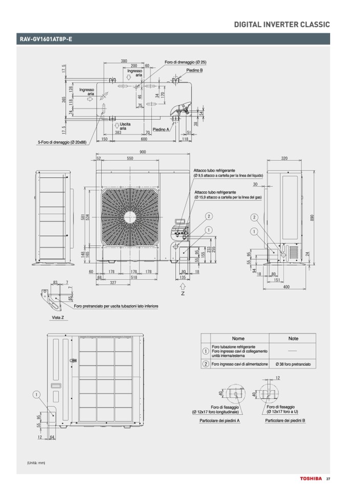
Ingresso

aria

Ingresso

Aria

4-Foro di drenaggio

(36x85)

Ingresso

Ingress

a

o

ria

Aria

Uscita Uscita

aria aria

PiediPnioedBino B

Foro di drenaggio

(Ø20x88)

5-Foro di drenaggio (Ø 20x88)

Foro pretranciato per uscita tubazioni lato inferiore

Vista Z

Piedino A

Piedino A

Vista Z

Foro di drenaggio

Foro di drenaggio (Ø 25)

(Ø25)

Attacco tubo refrigerante

(Ø 9,5 attacco a cartella per la linea del liquido)

Attacco tubo refrigerante

(Ø 15,9 attacco a cartella per la linea del gas)

Attacco tubo refrigerante

(Ø 9,5 attacco a cartella

per la linea del liquido)

Attacco tubo refrigerante

(Ø 15,9 attacco a cartella

per la linea del gas)

unità interna/esterna

DIGITAL INVERTER CLASSIC

N

N

o

o

m

m

e

e

No

N

te

ote

Ø 38 foro pretranciato

Foro di fissaggio

(Ø 12x17 foro a U)

Particolare dei piedini B

Foro tubazione refrigerante

Foro tubazione refrigerante

Foro ingresso cavi

Foro ingresso cavi di collegamento

di collegamento unità

interna/esterna

ForoFinogrroeisnsgorceasvsoi di alimentazione

cavi di alimentazione

(Ø 12x17 foro longitudinale)

Foro di fissaggio

(Ø 12x17 foro longitudinale)

Particolare dei piedini A

Particolare dei piedini A

Ø 38 foro pretranciato

Foro pretranciato per uscita

tubazioni lato inferiore

(Ø 12x17 foro a “U”)

Particolare dei piedini B

37