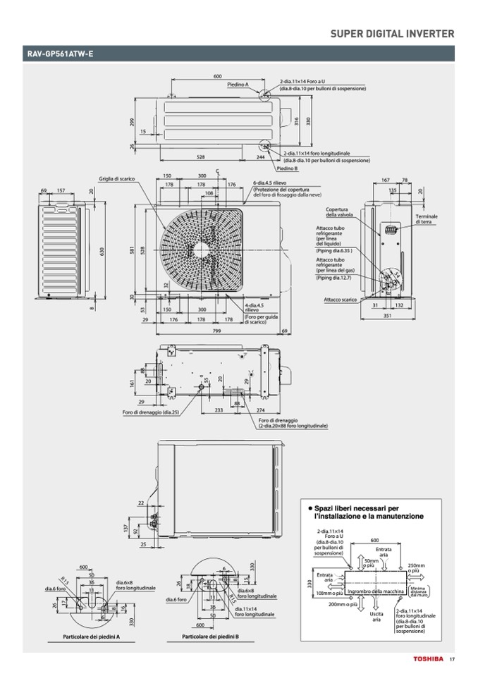
RAV-GP561ATW-E

69

157

9

2

6

1

3

0

3

15

6

2

2-dia.11×14 foro longitudinale

528

244

(dia.8-dia.10 per bulloni di sospensione)

Piedino B

C

L

Griglia di scarico

150

300

167

78

178

178

176

6-dia.4.5 rilievo

0

0

2

2

(Protezione del copertura

108

135

Copertura

della valvola

Terminale

di terra

600

6

3

0

3

2-dia.11×14

Foro a U

(dia.8-dia.10

per bulloni di

sospensione)

Entrata

aria

600

Entrata

aria

50mm

o più

250mm

o più

Minima

distanza

dal muro

0

3

6

1

8

5

8

2

5

2

3

Attacco tubo

refrigerante

(per linea

del liquido)

(Piping dia.6.35 )

Attacco tubo

refrigerante

(per linea del gas)

(Piping dia.12.7)

8

1

5

0

2

9

6

1

2

20

29

88

Foro di drenaggio (dia.25)

22

7

3

1

2

9

25

233

274

R

50

1

5

dia.6×8

6

1

0

8

5

36

foro longitudinale

2

8

1

4

1

3

dia.6 foro

11

dia.6 foro

11

R

dia.6×8

1

foro longitudinale

5

6

7

1

2

8

6

1

36

dia.11×14

6

50

foro longitudinale

0

3

600

100mm o più

Ingrombro della macchina

200mm o più

Particolare dei piedini A

Particolare dei piedini B

600

Piedino A

2-dia.11×14 Foro a U

(dia.8-dia.10 per bulloni di sospensione)

0

3

Attacco scarico

8

3

4-dia.4.5

31

132

5

150

300

rilievo

351

29

176

178

178

(Foro per guida

di scarico)

799

69

Foro di drenaggio

(2-dia.20×88 foro longitudinale)

SUPER DIGITAL INVERTER

Spazi liberi necessari per

l’installazione e la manutenzione

Uscita

aria

2-dia.11×14

foro longitudinale

(dia.8-dia.10

per bulloni di

sospensione)

17