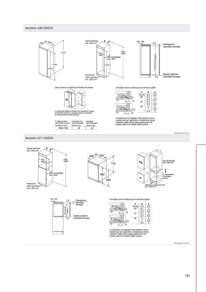
Modello GI81NAEF0

545

558

1749

1743

Uscita dell'aria

min. 200 cm2

Aerazione

nello zoccolo

min. 200 cm2

min. 40

S

Sporgenza

pannello frontale

Bordo inferiore

pannello frontale

1

7

7

2

A

+

S

(

m

a

x

.

)

1772

min.

560

max.

2200

560 consigliato

min. 550

22

1772+8

peso massimo consentito dei frontali del mobile

Consiglio per la distanza per cerniera piatta

A

16-19

2,5

20

3

2,5

21

3

2,5

22

4

2

3,5

3

2

T

F

X

R

F

R

X

0-3

0-1

2-3

0-1

2-3

0

1

2-3

Le ante del mobile montate che superano il peso

consentito possono causare danni e anomalie

di funzionamento alla cerniera.

F

X

R

T: altezza anta

del mobile inclusa

cerniera in mm:

1500-1750

cerniera non

ammortizzata,

anta in kg:

cerniera

ammortizzata,

anta in kg:

22

545

Le distanze consigliate nella tabella vanno

mantenute per garantire un'apertura senza

collisioni delle porte degli apparecchi ed

evitare danni al mobile della cucina.

Modello GI11VADE0

Uscita dell'aria

min. 200 cm2

Aerazione

nello zoccolo

min. 200 cm2

558

682

Dimensioni in mm

Uscita dell'aria

min. 200 cm2

min.

max.

560

712+7

560 consigliato

min. 550

2200

712

690

È necessario

un doppio-

fondo

Aerazione nello zoccolo

min. 200 cm2

min. 40

S

A

Sporgenza

pannello

frontale

Consiglio per la distanza per cerniera piatta

7

1

2

+

A

+

S

(

m

a

x

.

)

0-3

0-1

2-3

0-1

2-3

0

1

2-3

Bordo inferiore

pannello frontale

2

F

X

R

F

R

X

16-19

2,5

20

3

2,5

21

3

2,5

22

4

3,5

F

X

R

3

Le distanze consigliate nella tabella vanno

mantenute per garantire un'apertura senza

collisioni delle porte degli apparecchi ed

evitare danni al mobile della cucina.

2

Dimensioni in mm

191