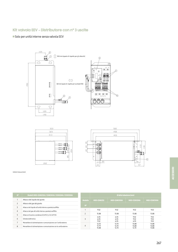
Kit valvola EEV – Distributore con n° 3 uscite

Solo per unità interne senza valvola EEV

300 mm (spazio di rispetto per gli attacchi)

360 mm (spazio di rispetto per la scheda PCB)

Unità di misura [mm]

Pos.

Nome

Ø della tubazione (mm)

I

R

O

S

E

C

A

1

Attac co del liquido dal giunto

Mod ello

MXD-

MXD-

MXD-

MXD-

2

Attacco delgas dalgiunto

Pos.

E24K232A

E24K300A E32K224A

E32K300A

3

Attacco del liquido all’unità interna a parete/a soffitto

1

9.52

9.52

9.52

9.52

4

Modelli MXD-E24K232A / E24K300A / E32K224A / E32K300A

Attacco delgas all’unità interna a parete/asoffitto

2

15. 88

Ø della tubazione (mm)

15. 88

15. 88

19. 05

1

Attacco del liquido dal giunto

5

Attacco di scarico condensa (I.D. Ø12.5; O.D. Ø 17.5)

Modello

MXD-E24K232

6.3M5XD-E24K3006A.35

MXD-E3

92.K5224A

M

9X.D5-2E32K300A

2

Attacco del gas dal giunto

6

Scheda elettronica

3

9.52

6.35

9.52

9.52

3

ttacco del liquido allunit interna a paretea soffitto

7

M

o

r

s e

t

t

ie

r

e d

i a

l

i

me

n

t

a

z

i

o

n

e e c o

m

u

n

i

c a

z

i

o

n

e c o

n l

u

n

i

t

à e s

t

e

r

n

a

4

ttacco del gas allunit interna a paretea soffitto

1

9.52

9.52

9.52

6.35

9.52

9.52

9.52

9.52

8 M

o

r

s e

t

t

ie

r

e d

i a

l

i

me

n

t

a

z

i

o

n

e e c o

m

u

n

i

c a

z

i

o

n

e c o

n l

e u

n i

t

à i

n

t

e

r

ne

2

15.88

12. 70

15.88

12. 70

15.88

15.88

15. 88

15. 88

5

Attacco di scarico condensa (l.D Ø 12.5; O.D. Ø 17.5)

6.3

45

12. 70

6.35

12. 70

9.52

9.52

15. 88

15. 88

6

Scheda elettronica

3

6.35

6.35

9.52

9.52

9.52

15. 88

6.35

12. 70

6.35

9.52

7

Morsettiere di alimentazione e comunicazione con l'unità esterna

12. 70

15. 88

12.70

12.70

15.88

15.88

8

Morsettiere di alimentazione e comunicazione con le unità esterne

4

12.70

12.70

15.88

15.88

15.88

12.70

12.70

15.88

267