Dimensioni -

Recuperatore ERV Plus

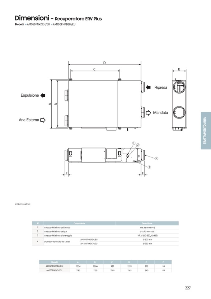
Modelli AM050FNKDEH/EU AM100FNKDEH/EU

AM050FNKDEH/EU

Unità di misura [mm]

AM100FNKDEH/EU

Componente

Descrizione

Ø 6.35 mm (1/4")

Ø 12.70 mm (1/2")

VP 25 (OD Ø32, ID Ø25)

Ø 200 mm

AM050FNKDEH/EU

Ø 250 mm

AM100FNKDEH/EU

1

Attacco della linea del liquido

2

Attacco della linea del gas

3

Attacco della linea di drenaggio

4

Diametro nominale dei canali

AM050FNKDEH/EU

AM100FNKDEH/EU

Modelli

A

B

C

D

E

F

AM050FNKDEH/EU

1036

1000

987

1553

270

99

AM100FNKDEH/EU

1183

1135

1189

1763

340

84

227

A

I

R

A

O

T

N

E

M

A

T

A

R

T