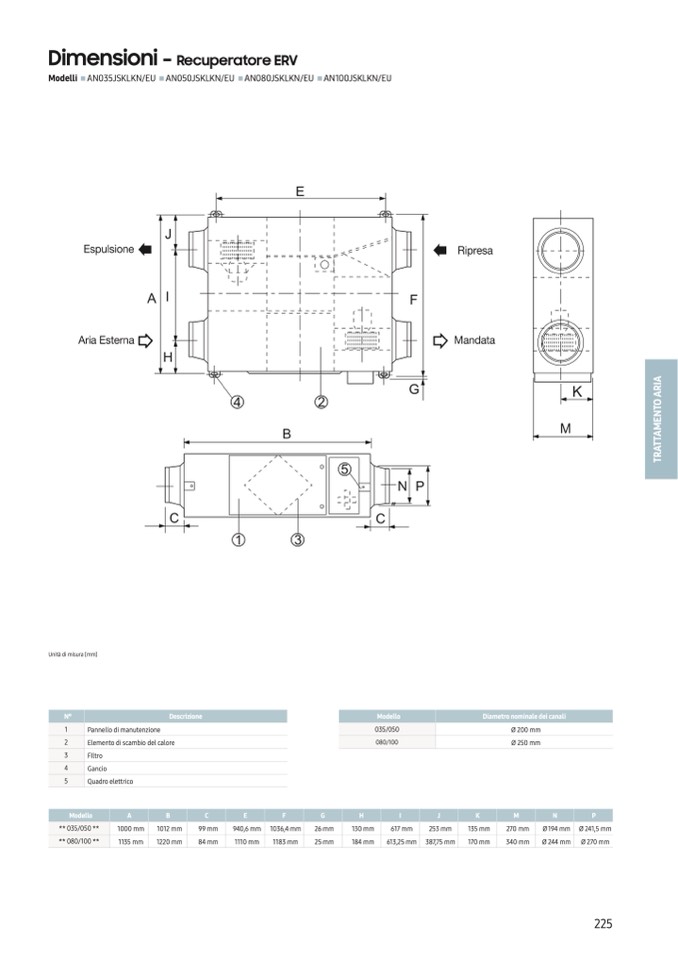
Dimensioni -

Recuperatore ERV

Modelli AN035JSKLKN/EU AN050JSKLKN/EU AN080JSKLKN/EU AN100JSKLKN/EU

Unità di misura [mm]

Pannello di manutenzione

Elemento di scambio del calore

FIltro

Gancio

Ø 200 mm

Ø 250 mm

270 mm

340 mm

Quadro elettrico

1000 mm

1135 mm

1012 mm

1220 mm

99 mm

84 mm

940,6 mm

1110 mm

1036,4 mm

1183 mm

26 mm

25 mm

130 mm

184 mm

617 mm

613,25 mm

253 mm

387,75 mm

135 mm

170 mm

Ø 194 mm

Ø 244 mm

Ø 241,5 mm

Ø 270 mm

225

T

R

A

T

T

A

M

E

N

T

O

A

R

I

A

Descrizione

1

2

3

4

5

Modello

Diametro nominale dei canali

035/050

080/100

Modello

A

B

C

E

F

G

H

I

J

K

M

N

P

** 035/050 **

** 080/100 **