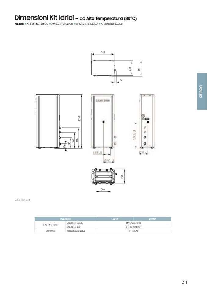
Dimensioni Kit Idrici -

ad Alta Temperatura (80°C)

Modelli AM160TNBFEB/EU AM160TNBFGB/EU AM250TNBFEB/EU AM250TNBFGB/EU

Unità di misura [mm]

Lato refrigerante

Lato acqua

Attacco del liquido

Attacco del gas

Ingresso/uscita acqua

Ø 9.52 mm (3/8")

Ø 15.88 mm (5/8")

PT 1 (25 A)

211

K

I

T

I

D

R

I

C

I

Descrizione

16.0 kW

25.0 kW