02

Dimensioni unità interne -

Canalizzabile media prevalenza

Modelli AM022ANMPKH/EU AM028ANMPKH/EU AM036ANMPKH/EU AM045ANMPKH/EU AM056ANMPKH/EU AM071ANMPKH/EU

Unità di misura [mm]

168

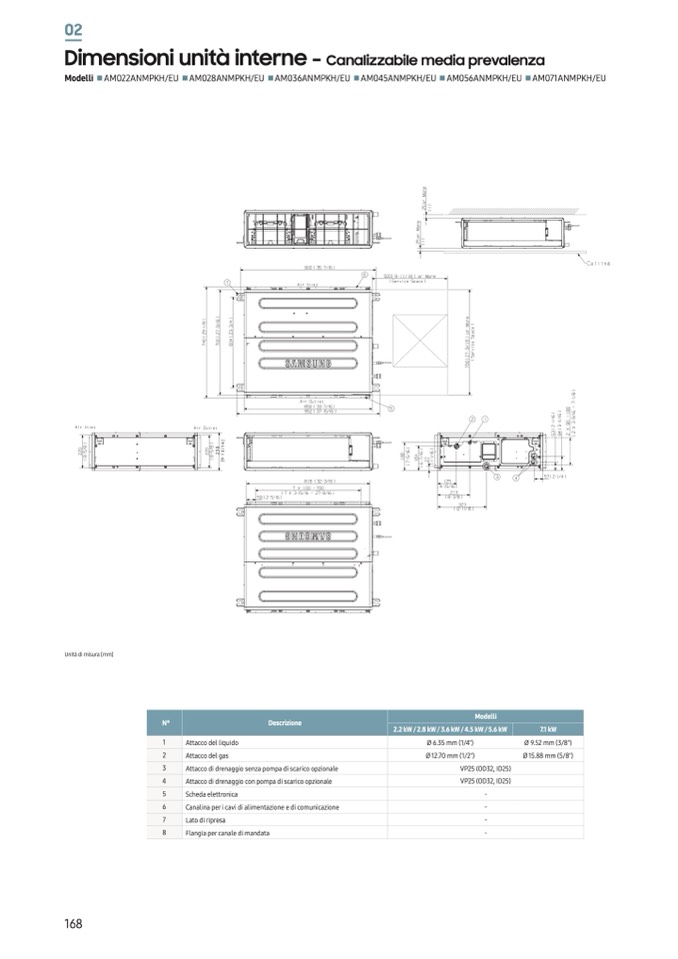
Descrizione

1

Attacco del liquido

2

Attacco del gas

3

Attacco di drenaggio senza pompa di scarico opzionale

4

Attacco di drenaggio con pompa di scarico opzionale

5

Scheda elettronica

6

Canalina per i cavi di alimentazione e di comunicazione

7

Lato di ripresa

8

Flangia per canale di mandata

Modelli

2.2 kW / 2.8 kW / 3.6 kW / 4.5 kW / 5.6 kW

Ø 6.35 mm (1/4")

Ø 12.70 mm (1/2")

VP25 (OD32, ID25)

VP25 (OD32, ID25)

-

-

-

-

7.1 kW

Ø 9.52 mm (3/8")

Ø 15.88 mm (5/8")