HWT-601F21SM3W-E, HWT-601F21ST6W-E, HWT-1101F21SM3W-E, HWT-1101F21MM3W-E, HWT-1101F21ST6W-E,

HWT-1101F21MT6W-E, HWT-1101F21ST9W-E, HWT-1101F21MT9W-E

Unit

à idroelettrica - modello All in One

HWT-601F21SM3W-E (TR), HWT-601F21ST6W-E (TR), HWT-1101F21SM3W-E (TR),

HWT-1101F21MM3W-E (TR), HWT-1101F21ST6W-E (TR), HWT-1101F21MT6W-E (TR),

HWT-1101F21ST9W-E (TR), HWT-1101F21MT9W-E (TR)

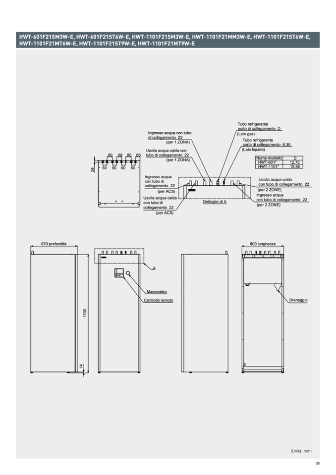
670 profondità

600 lunghezza

0

7

1

4

1

6

2

80 68 80 66

60 60 60 60

(Lato liquido)

Nome modello

HWT-601*

HWT-1101*

D

12.70

15.88

Ingresso acqua con tubo

di collegamento 22

(per 1 ZONA)

Uscita acqua calda con

tubo di collegamento 22

(per 1 ZONA)

Ingresso acqua

con tubo di

collegamento 22

(per ACS)

Uscita acqua calda

con tubo di

collegamento 22

(per ACS)

A

Manometro

Controllo remoto

Tubo refrigerante

porta di collegamento D

(Lato gas)

Tubo refrigerante

porta di collegamento 6.35

Dettaglio di A

Uscita acqua calda

con tubo di collegamento 22

(per 2 ZONE)

Ingresso acqua

con tubo di collegamento 22

(per 2 ZONE)

Drenaggio

(Unit

à: mm)

33