UNITÀ ESTERNE - SERIE G3

MULTISPLIT IN R32

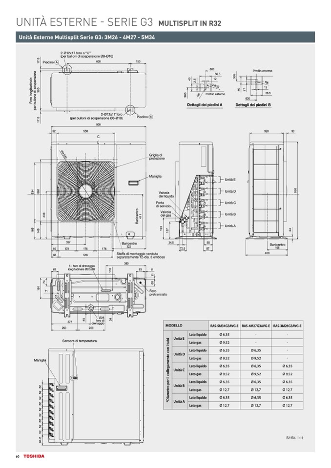
Unità Esterne Multisplit Serie G3: 3M26 - 4M27 - 5M34

60

5

.

7

1

Piedino A

2-Ø12x17 foro a “U”

(per bulloni di sospensione Ø8-Ø10)

600

150

600

e

n

Profilo esterno

56.5

e

l

o

i

s

0

5

6

3

n

a

e

2

n

4

5

.

12

R 6

i

d

p

s

u

2-R 1

t

i

g

s

i

5

6

0

4

7

1

o

0

12

n

d

3

5

l

e

6

o

Profilo esterno

56.5

n

3

o

r

o

l

600

o

F

l

u

b

r

e

p

Dettagli dei piedini A

Dettagli dei piedini B

5

.

7

1

d

i

a

.

5

5

1

2-Ø12x17 foro

(per bulloni di sospensione Ø8-Ø10)

900

C

L

Piedino B

Griglia di

protezione

Maniglia

52

550

320

30

4

1

0

9

5

5

3

8

8

Valvola

Unità D

del liquido

Porta

Unità C

di servizio

o

r

t

Valvola

3

e

1

8

n

del gas

Unità B

4

c

i

r

a

1

4

B

Unità A

5

6

8

3

9

1

7

5

4

2

1

4

1

1

60

68

67

327

178

178

518

5 - foro di drenaggio

longitudinale Ø20x88

178

Baricentro

34.5

322

Staffa di montaggio venduta

separatamente 12-dia. 3 emboss

380

6

83

11

1

1

80

72.5

87

Baricentro

195

400

4

7

5

6

1

9

1

71

Foro

pretranciato

Ø25

375

5

4

4

3

foro di

drenaggio

250

260

MODELLO

i

Sensore di temperatura

b

Unità E

u

t

i

n

o

c

o

t

n

Unità D

Maniglia

e

m

a

g

e

l

l

o

Unità C

c

l

i

r

e

p

2

5

o

r

t

Unità B

2

5

e

m

a

2

i

5

D

*

2

5

Unità A

2

5

2

5

2

5

2

5

2

5

2

.

4

9

RAS-5M34G3AVG-E RAS-4M27G3AVG-E RAS-3M26G3AVG-E

Lato liquido

Lato gas

Lato liquido

Lato gas

Lato liquido

Lato gas

Lato liquido

Lato gas

Lato liquido

Lato gas

Ø 6,35

Ø 9,52

Ø 6,35

Ø 9,52

Ø 6,35

Ø 9,52

Ø 6,35

Ø 12,7

Ø 6,35

Ø 12,7

-

-

-

-

Ø 6,35

Unità E

Ø 9,52

Ø 6,35

Ø 9,52

Ø 6,35

Ø 12,7

Ø 6,35

Ø 12,7

Ø 6,35

Ø 9,52

Ø 6,35

Ø 12,7

Ø 6,35

Ø 12,7

(Unità: mm)