SCHEMI TECNICI DETTAGLIATI

RXYSA-AV1/AY1

40

171

758

4 fori per bulloni d'ancoraggio

M12

171

182

1100

9

109

289

163 163 163

150

71

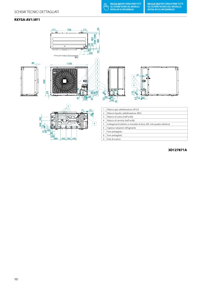
5

4

3

2

1

8

7

6

6

25 90

150

51

45

8

7

6

12 99

43

100

17

1 Attacco gas saldobrasatura ·Ø15,9

2 Attacco liquido, saldobrasatura ·Ø9,5·

3 Attacco di carica (nell'unità)

4 Attacco di servizio (nell'unit

à)

5 Collegamenti elettrici e morsetto di terra ·M5· (nel quadro elettrico)

6 Ingresso tubazioni refrigerante

7 Foro pretagliato

8 Foro pretagliato

9 Foro di scarico

3D127871A

3

9

6

5

4

8

5

(

4

8

0

~

4

9

0

)

4

6

0

2

6

9

5

4

5

90 25

45

50

2

4

6

1

0

3

5

1

5

9

4

6

8

6

9

5

8

1

7

5

3

1

3

9

1

3

2

5

3

9

5

7

0

4

5

1

7

5

5

3

9

5

3

0

3

0

7

0

FAI CLIC QUI PER CONSULTARE TUTTI

GLI SCHEMI TECNICI DEL MODELLO

RXYSA-AV1 SU MY.DAIKIN.EU

FAI CLIC QUI PER CONSULTARE TUTTI

GLI SCHEMI TECNICI DEL MODELLO

RXYSA-AY1 SU MY.DAIKIN.EU