eodbetalineddirectlyfromtheCAD-model

509

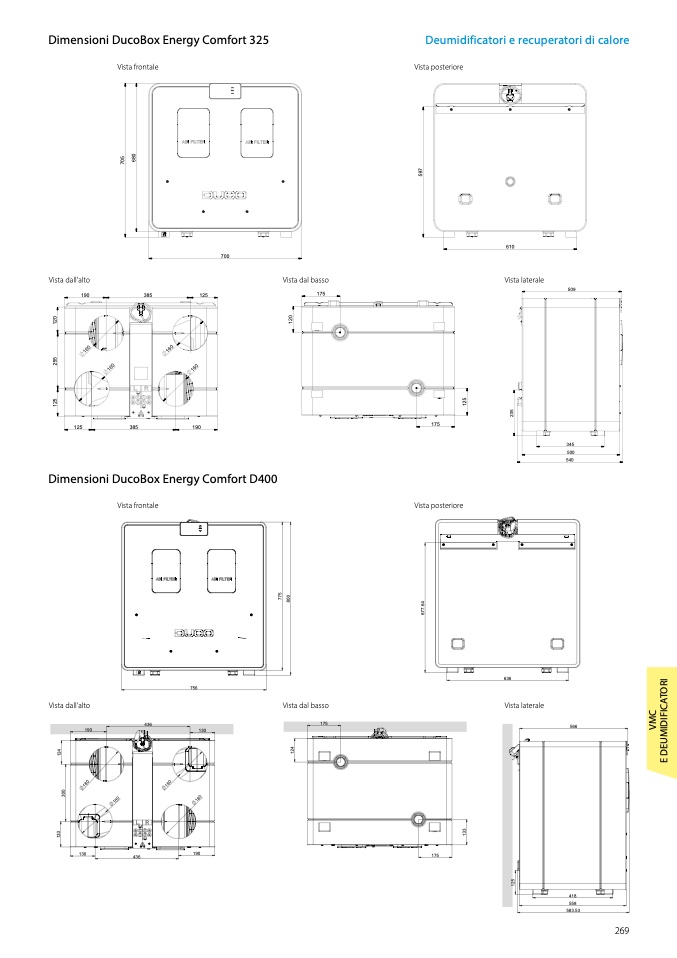
Dimensioni DucoBox Energy Comfort 325

obtained directly from the CAD-model

509

Status

Status Date

In Work

21-Nov-19

Deumidificatori e recuperatori di calore

Status

In Work

Status Dat

21-Nov-19

12

4

3

13

2

811

12

3

2

11

Vista frontale

4

13

8

12

3

2

11

509

Vista posteriore

509

5

0

0

8

6

7

technical-data-sheet-DucoBox-Energy-Comfort-D400-(en)-p3

7

9

5

7

9

5

5

0

0

8

6

7

7

9

5

7

9

5

2

2

5

3

5

3

6

6

6

345

50700

540

5

3

2

5

3

2

364150

Status

Status Date

Status

Status Date

610

In Work

29-Sep-21 10:55:17 AM

In Work

29-Sep-21 10:55:17 AM

Dimens

500

ions

Sta

o

tus

f Duc

Sta

tus

Status

Status Date

o B

Date

ox Energ

Stat

y

us

Com

In Work

29-Sep-21 10:55:17 AM

Stat

f

us

o

Da

r

te

t D400

540

In Work

29-Sep-21 10:55:17 AM

StaItnusWork

Sta2tu9s-SDeapt-e21 10:55:17 AM

345

345

6In1W0 ork

29-Sep-21 10:55:17 AM

700

700

500

500

Status

Status Date

Status

Status Date

Status

540

Status

Status Date

175

175

InWork

29-Sep-2110:55:17AM

InWork

29-Sep-21St1a0tu:5s5:17AM

S

540

In Work

29-Sep-21 10:55:17 AM

Status

Status Date

In Work

In Work

2

Vista dall'alto

Vista dal ba

1

s

7

s

5

o

175

Front view

175

Vista laterale

In Work

29-Sep-21 10:55:17 AM

11

175

566

509

566

1

190

385

125

4

4

2

1

2

1

175

175

2

2

4

4

4

2

1

566

1

1

175

175

175

175

i

cal-data-sheet-DucoBox-Energy-Comfort-D400-(en)-p3

385

125

190

385

125

0

0

4

2

0

2

1

2

175

175

175

175

2

1

1

1

d

ata-sheet-DucoBox-Energy-Comfort-D400-(en)-p3

4

2

4

2

1

4

2

4

2

1

0

1

0

4

1

4

2

0

1

6

0

2

1

2

1

2

1

1

2

1

1

6

0

technical-data-sheet-DucoBox-Energy-Comfort-D400-(en)-p3

technical-data-sheet-DucoBox-Energy-Comfort-D400-(en)-p3

5

2

5

0

8

1

6

1

6

0

0

0

6

7

1

1

6

6

0

0

1

6

0

7

0

3

1

7

0

3

1

5

5

3

3

(en)

5

7

0

8

5

7

0

8

3

1

6

1

6

1

6

1

6

0

0

0

0

5

2

3

7

0

3

3

1

4

6

.

1

8

1

7

(en)

5

1

175

5

3

7

6

175

6

6

175

2

1

2

1

Dimensions of DucoBox Energy Comfort D400

175

175

3

3

5

6

6

2

3

1

3

1

3

1

(en)

(en)

Dimensions of DucoBox Energy Comfort D400

175

125

385

190

5

2

175

5

3

2

1

3

1

17

1

5

5

175

7

9

7

345

Dimens Dimensions of DucoBox Energy Comfort D400

175

175

175

1

1

2

2

175

385

9 190

7

125

385

190

700

500

ions of DucoBox Energy Comfort D400

175

175

5

Front view

Rear view

2

1

418

540

418

566

566

Front view

756

Rear view

756

558

418558

583.53

583.53

r

om the CAD-m

D

ode

im

l

ensioni DucoBox Energy Comfort D400

566

566

566

756

558

583.53

D

-model

566

Front view

Front view

Rear view

Rear view

3

8

12

3

2

Vista frontale

11

566

D

190

25/11/2019

566

MVR

566

Adding Sheet 3 for instruction purpose

566

385

125

Vista posteriore

D

25/11/2019

MVR

Adding Sheet 3 for instructio

12

3

2

11

C

21/10/2019

MVR 566 Revision on Frontplate (screws)

566

Top view

C

21/10/2019

MVR

Revision on Frontplate (scre

B

23/09/2019

MVR

Releasing the product

B

23/09/2019

MVR

Releasing the product

0

2

1

Iteration

Rev. Date

Name

Description

D

25/11/2019

MVR

Adding Sheet 3 for instruction purpose

Iteration Rev. Date

Name

D

25/117/25019

M

Description

436

436

Date: 21-Nov-19

190

DucoBox Energy Comfort

1 901

30

C

21/10/2019

MVR

Revision on Frontplate (screws)

C

21/10/2019

M

B

234/3069/2019

MVR

Releasing the product

Scale: 0.150

130

DucoBox Energy Com

B

23/09/2019

M

7

0

7

0

2

5

5

4

190

Tol.: -

Iteration

Rev. Date

Name 1D30escription

Draftsman: MVR

Iteration Rev. Date

N

Tol.: -

7

0

7

0

4

1

8

8

2

1

6

0

6

0

Mat.:

Revision: D

5

5

5

7

0

4

2

5

4

6

4

2

4

6

1

1

Date: 21-Nov-19

Mat.:

7

0

7

0

7

0

1

5

.

1

.

Format: A2

DucoBox Energy Comfort

Scale: 0.150

Format: A2

7

0

8

7

0

8

8

2

7

4

4

7

DucoB

5

6

2

6

7

0

.

HANDELSSTRAAT 19 - 8630 VEURNE - BELGIUM

4

4

6

1

6

6

0

0

Outline

1

Weight

Coat. Surf.

Volume

Drawing number

7

0

6

.

1

6

.

7

tel. 0032-58/330033

fax. 0032-58/330044

HANDELSSTRAAT 19 - 8630 VEURNE - BELGIUM

Tol.: -

Draftsman: MVR

Outline

We

8

7

info@duco.eu

www.duco.eu

This drawing is property of Vero Duco NV and can not be copied,

0.000

134922915.7

inf

M

o@

a

d

t

u

.:

co.eu

www.duco.eu

tel. 0032-58/330033

fax. 0032-58/330044

7

6

4

7

6

6

Revision:D

0.0

6

.

5

5

7

0

5

5

7

0

7

neither shown to third party/externally without written permission.

mm

kg/m

dm2/m

mm3

A1040000

ne

F

ith

o

er

r

s

m

ho

a

wn

t:

to

A

th

2

ird party/externally without written permission.

This drawing is property of Vero Duco NV and can not be copied,

mm

kg

7

0

8

7

0

8

7

0

7

0

7

0

7

0

6

8

8

0

0

8

8

5

4

4

1

1

1

1

8

8

0

0

Outline

Weight

Coat. Surf.

Volume

Drawing num

3

7

1

0

8

6

.

6

0

5

7

5

2

0

7

0

0

6

.

4

6

.

4

HANDELSSTRAAT 19 - 8630 VEURNE - BELGIUM

HANDELSSTRAAT 19 - 8630 VEURNE - BE

3

7

.

7

1

8

0

tel. 0032-58/330033

fax. 0032-58/330044

8

7

7

7

4

7

0

0

This drawing is property of Vero Duco NV and can not be copied,

info @ duco.eu

www.duco.eu

1

8

0

0.000

tel. 0032-58/330033

fax. 0032-58

0

0

info @ duco.eu

www.

134922915.7

5

5

3

.

7

1

1

8

8

7

0

6

7

6

6

6

6

.

0

1

1

8

8

neither shown to third party/externally without written permission.

4

6

mm

kg/m

dm2/m

This drawing is property of Vero Duco NV and

neith

m

er s

m

ho

3

wn to third party/externally without

A10400

2

2

7

6

1

1

6

1

8

0

7

7

0

6

1

8

2

5

2

1

5

5

2

6

125

385

190

1

1

418

418

418

558

2

5

636

636

756

756

1

3

3

418

558

583.53

1

1

3

3

418

583.53

636

756

756

756

558

558

636

5

3

5

418

558

3

Status

636

Status Date

583.53

1

1

2

1

2

1

5

2

5

1

2

583.53

756

130

558

583.53

583.53

5

5

2

436

130 190

Status

Sta6t3u6s Date

In Work

29-Sep-21 10:55:17 AM

2

1

In Work436

Status

29-Sep-21 10:55:17 AM

Status Date

190

418

1

418

418

130

Status

418

436

636

Status Date

190

In Work

29-Sep-21 10:55:17 AM

636

I

756

756

558

558

558

In Work

756

756

418

558 63629-Sep-21 10:55:17 AM

636

R

Top view

583.53

583.53

418

583.53

756

583

B

.53

ottom view

558

636

636

756

Status Date

583.53

558

583.53

Status

Status Date

Status

Status

Status Date

O

T

A

Vista dall'alto

Top view

Vista dal basso

Bottom view

175

Status

Vista laterale

Status Date

In Work

In Work

29-Sep-21 10:55:17 AM

29-Sep-21 10:55:17 AM

175

In Work

29-Sep-21 10:55:17 AM

In Wo

S

rk

ide vi

2

e

9-S

w

ep-21 10:55:17 AM

C

436

436

I

190130

130

175

Iteration Rev. Date

Name

Desc

C

F

I

436

436

436

175

190

Top view

4

566

DucoBox Energy Comfor

M

D

I

190130

Top view

130

130

4

1

2

Bottom view

Bottom view

566

V

M

190

2

1

2

4

2

1

4

436

130

4

1

175

175

U

4

2

1

4

2

1

2

1

E

436

436

175

E

436

436

175

HANDELSSTRAAT 19 - 8630 VEURNE - BELGIUM

tel. 0032-58/330033

fax. 0032-58/330044

D

190

4

190

190 130

190130

2

436

134036

130

info @ duco.eu

www.duco.eu

1

4

This drawing is property of Vero Duco NV and can not be copied,

130

8

8

0

0

8

0

190

190

130

4

2

neither shown to third party/externally without written permission.

4

1

2

2

4

1

4

4

2

0

4

4

2

2

1

1

1

1

1

2

1

0

1

3

1

8

0

8

0

0

0

1

0

1

8

0

2

1

8

0

1

1

8

8

0

0

1

1

8

0

0

2

1

0

4

2

1

1

1

8

8

4

0

3

1

0

3

1

8

0

0

0

1

0

1

8

0

0

0

3

1

1

8

8

1

8

0

1

8

8

8

8

0

0

1

1

1

8

8

8

0

0

0

0

0

1

8

8

8

0

0

0

1

1

5

3

3

1

0

3

0

0

0

7

0

1

1

1

0

0

0

5

7

0

8

3

1

1

8

8

7

0

3

3

1

3

.

0

3

3

0

3

1

8

0

0

8

8

1

8

0

0

1

0

8

0

8

0

0

7

0

3

4

8

3

6

3

3

3

1

6

1

1

3

0

0

3

6

8

8

0

0

0

1

0

1

0

1

1

8

8

1

1

8

8

1

1

3

4

7

1

1

3

7

8

0

0

.

7

6

3

7

0

3

130190

1

8

190

1

1

8

0

8

1

175

6

436

1

436

175

130190

130

175

436

436

190

190

175

3

3

3

1

3

3

1

3

3

3

3

3

1

1

436

3

1

1

3

1

3

1

130

190

3

3

1

436

9

7

175

1

2

5

175

175

7

130

130

130 436

190

130190

436

436

S

190

43

i

6

de view

190

5

2

175

1

130

194036

Iteration190 Rev. Date

Name

Description

Iteration

Rev. Date

Name

Description

1

436

130

Side view

418

Date: 17-Jun-21

5It6e6ration

Rev

D

. D

u

at

c

e

oBo

N

x

am

E

e

ner

D

g

e

y

scr

C

ipt

o

ion

mfo

I

r

t

t

er

(

a

P

tio

l

n

u

It

s

er

)

R

a

e

t

4

i

v

o

D

.

5

n

D

0u

at

c

e

R

-o

e

1

v

B

.

5

D

o0

a

N

x

t

%

e

am

E

e

BnOe

N

r

D

M

a

g

m

e

y

s

e

cr

C

ipt

o

iSo

D

cn

m

e

a

s

le

c

f

r

:

o

ip

0

r

t

.

i

1

t

o

5

n

(

0

Plus) 450 - 15

41

0

8

% BOM

Date: 17-Jun-21

566

756

Date: 17-Jun-21

5S5c8ale: 0.150

566

DucoBox Energy Comfort (Plus) 4D50uc-o1B5o0x%EBnOerMgy Co

Sc

m

ale

f

:

o

0

r

.1

t

5

(

0

Plus) 450 - 150% BO

58

M

3.53 Scale: 0.1

S

5

c

0

ale: 0.150

756

Iteration Rev. Date

Name

Tol.:

D

-

ucoBox Energy Com

Dr

f

a

o

fts

r

m

t

a

(

n

P

: L

lu

LT

s

T

)

ol

4

.: -

50 - 150% BOM

Draftsman: LLT

Date: 17-Jun-21

558

Date: 17-J5u8n3-2.513

566

Mat.:

Revision: A

Mat.:

Revision: A

Description

Tol.:

D

-

uco

Fo

B

rm

o

a

x

t: A

E

1

nergy Com

Dr

f

a

o

fts

r

m

t

a

(

n

P

: L

lu

LT

s

T

)

ol

4

.: -

50 -

F

1

o

5

rm

0

at

%

: A1

BOM

Draftsman: LLT

Tol.: -

Date: 17-JunD-r2a1ftsman: LLT

Side view

HANDELSSTRAAT 19 - 8630 VEUR

I

N

t

E

er

-

a

B

t

E

io

LG

n

IUM

Rev. Date

Side view

Mat.:

OutliInterationWeRigehvt. DateCRoeavt.isSNiouanrmf:.Ae VoluMDmeaest.c:riptioDnraOwuitnligIntenruamtiobneWr eRigehvt. DateCRoeavt.isSNiouanrmf:.Ae VoluDmeescriptioDnrawing number

Mat.:

Scale: 0.150Revision: A

tel. 0032-58/330033

fax. 0032-58/330044

Format: A1

Nam

H

e

ANDELSS

D

T

e

RA

s

A

c

T

r

1

ip

9

t

-

io

86

n

30 VEUR

I

N

t

E

er

-

a

B

t

E

io

LG

n

IUM

RTeovl.:D-ate FormNamt: eA1 Description Draftsman: LLT

info @ duco.eu

www.duco.eu

tel. 0032-58/330033

fax. 0032-58/330044

Format: A1

Date: 17-Jun-21

269

tel. 0032-58/330033

fax. 0032-58/330044

566

HANDELSSTRAATn1e9ith-er8s6h3o0wVnEtUoRt

5

hNir

6

Ed

6

p-aBrtyE/LeGxtIeUrnMally withou

This drawing is property of Vero Duco NV and can not be copied

O

,

utli5n6e6

D u c

info @ duco.eu

0.000

www.duco.eu

2M17a4t.8: 1105.4

OutliInteratioDnaWtee:

0

Ri1g

.0

e7h

0

v-tJ.

0

uDna-2te1CRoeavt.isSNiouanrmf:. Ae Vol

2

uD

1

m

7

ee

4

sc

8

r

1

ip

1

t

0

io

5

Dn

.

r

4

awing numDbearte: 17-Jun-21

t wri tten pe

o

rm

B

issio

o

n.

xE

tel. 0032-58/33i0n0fo33@ duco.eu fax. 0032-58/330044 www.duco.eu

0.000

217481105.4

Date: 17-Jun-21

HAN

n

DE

e

LS

r

S

g

m

TRt

m

A

W

HA

e

NTD

ig

hEi

h

sLSd

t

Sr

y

eAl.T0n0

C

1e39i2th--5

o

e8r8/s63

D

aTwRinA

m

h3o0w0Vn3

u

gA

iTs

f

E

k

3

t

c

o

Uo

g

Rth

/

r

1p

C

9r

o

o

o

p-e

N

m

irE

t

d p-a

B

a

8rt6y

t

3

.

o

(

o0f

S

V

Brt

P

yE/LeGxf

x

E

u

erUo

r

R

f

E

l

atIe

u

xUr.nM0a

D

.I

N

t

uE

e

c

s

0l

d

l3y2

n

o

r

-

V

N

a

B

)

m

w-5it8

2

h

e

V

ot

E

i

a

lo

L

u

r

4

/

/

o3

m

u3

nG

n

d

m

g

D5

t0w04r

IUcaM

e

y

0

i

u

4tten

nno

R

C

c-

pe

t b

ev

o

o

r

1

m

B

co

.D

p

i

F

s

5

s

mo

io

m

D

ie

r

d

aOa

,

w

f

tue

o

itnlig

r

n

t

enu

(

m

P

N

A

ba

l

e

u

mW

1

r

s

e

1

e

)

ig

7

h

46

tD

5

e

0u

s

0

c

c

r

0-

iCp

o1

oti

B

oa

5

nt.

o0

S

x%

urf

E

.

Bn

V

Oe

olu

rM

m

g

e

y Co

D

m

raw

fo

ing

rt

nu

(

m

PA

b

l

e

u1

r

s1)746500- 150% BOM

o

n

0

r3

.

m

x%

at

E

: A

Bn

1

OerMg

mm

y Co

Sc

m

ale

f

k:

o

g0/

r

.m1

t

5

(

0

Plus

d

)

m2

4

/m

50 - 1

mS

5

mca

0

3le

%

: 0.1

B

50

OM

Scale: 0.150

info

5

@

66

duco.eu

www.duco.eu

This drawing is property of Vero Duco NV and can not be copied,

info @ duco.eu

0

T

.

h

0

is

0

dr

0

awing is property ofwVwewro.dDuucoc

T

o.e

o

Nu V

l.:

a

2

n

-

1

d

7

ca

4

n

8

no

1

t b

1

e

0

co

5

p

.

ie

4

d

O

,

utline

We

T0

i

o

g

.0l

h

.:0

t

D

-0

D

u

ra

c

Cf

o

tsom

B

ata.

o

nS:

x

uLrLf

E

.TT

n

Vo

e

ol.:l

2

u

r

-

1

m

g

7

e

y

481

C

10

o

5

D

m

.

r

4D

aw

r

f

a

o

in

ft

g

s

r

m

t

n

a

u

(

n

m

P

:

A

b

L

l

e

u

L

1

r

T

s1

T

)

o

7

l

4

.:

6

-

50

D

0

ra

0-

fts

1

m

5

a

0

n:

%

LLT

BOM

Da

n

e

i

t

h

e

r

s

h

o

w

n

t

o

t

h

i

r

d

p

a

r

t

y

/

e

x

t

e

r

n

a

l

l

y

w

i

t

h

o

u

t

w

r

i

t

t

e

n

p

e

r

m

i

s

s

i

o

n

.

m

t

m

e

l

.

0

n

0

e

3

i

2

t

h

-

5

e

8

r

/

s

3

h

3

o

0

w

0

n

3

k

3

t

o

g

t

h

/

m

i

r

d

p

a

r

t

y

/

e

x

f

a

t

e

x

r

.

n

0

a

0

l

d

l

3

y

2

m

w

-

5

i

t

8

2

h

/

/

o

3

m

u

3

t

0

w

0

4

r

i

4

t

t

e

n

p

e

r

m

i

s

s

m

i

o

n

3

.

HANTDhEisLSdSraTwRinAgAiTsn1pe9riothp-er8rts6yh3o0fwVnEetrUoRtDhNiurEdcop-aNBrVtyE/aLenGxdtIeUcranMnallnyowt bitheocuo

D

tpwierdi

u

tt,en

c

pe

o

rm

B

issio

o

n.

M

a

t

.

:

x

A

E

1

1

n

7

e

6

rg

m

5

m

y

0

0

Comf

k

o

g/

r

m

t (Plus

d

)

m2

4

/m

50 - 1

m

5

m

0

3

%

A

1

B

1

7

O

6

M

5

0

0

S

c

a

l

e

:

0

.

1

5

0

Sca

m

m

M

k

g

a

/

t

m

.

:

d

m

2

/

m

m

m

3

0

.

0

0

0

R

e

v

i

s

i

o

n

:

A

M

2

a

1

t

7

.

:

4

8

1

1

0

5

.

4

R

e

v

i

s

i

o

n

:

A

M

a

t

.

:

A

1

1

7

6

5

0

0

T

o

l

.

:

-

R

e

v

i

s

i

o

n

:

A

D

r

a

175

4

2

1