29

VR40

VR40

3

3

3

3

10c

2

2

I

II

VR34

1

VR34

1

2

2

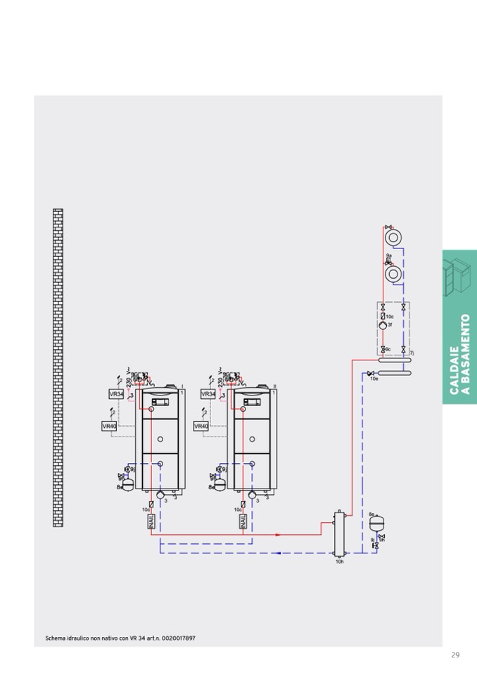
Schema idraulico non nativo con VR 34 art.n. 0020017897

10c

8e

9j 9h

10h

9a

q

10c

3f

9c

10e

R2M

7j

I

N

A

I

L

I

N

A

I

L

C

A

L

D

A

I

E

A

B

A

S

A

M

E

N

T

O