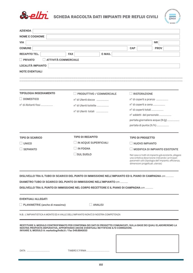
SCHEDA RACCOLTA DATI IMPIANTI PER REFLUI CIVIL

I

CAP

NR

PROV

FAX

E-MAIL

AZIENDA

NOME E COGNOME

VIA

COMUNE

RECAPITO TEL.

PRIVATO

ATTIVITÀ COMMERCIAL

E

LOCALITÀ IMPIANTO

NOTE EVENTUAL

I

....................................................................................................................................................................................................................................

....................................................................................................................................................................................................................................

TIPOLOGIA INSEDIAMENTO

DOMESTICO

n° di Abitanti fissi .................

PRODUTTIVO / COMMERCIALE

n° di Utenti docce ................

.

n° di Utenti toilette ................

.

n° di Utenti totali .................

RISTORAZIONE

n° di coperti a pranzo .................

n° di coperti a cena .................

n° di coperti totali .................

n° addetti del personale .................

portata giornaliera acqua (lt/g) ................

.

portata di punta (lt/h) .................

TIPO DI SCARICO

UNICO

SEPARATO

TIPO DI RECAPIT

O

IN ACQUE SUPERFICIALI

IN FOGN

A

SUL SUOLO

TIPO DI PROGETT

O

NUOVO IMPIANT

O

MODIFICA DI IMPIANTO ESISTENTE

Nel caso si tratti di impianto già esistente, allegare

una sintetica descrizione indicando i principali

parametri utili (tipologia dell’impianto, e

fficienza,

dimensioni progettuali, utenze)

DISLIVELLO TRA IL TUBO DI SCARICO DEL PUNTO DI IMMISSIONE NELL’IMPIANTO ED IL PIANO DI CAMPAGNA cm ..........

.

DIAMETRO TUBO DI SCARICO DEL PUNTO DI IMMISSIONE NELL’IMPIANTO cm ...........

DISLIVELLO TRA IL PUNTO DI IMMISSIONE NEL CORPO RECETTORE E IL PIANO DI CAMPAGNA cm ...........

EVENTUALI ALLEGATI

PLANIMETRIE (anche di massima)

ANALIS

I

N.B.: L’IMPIANTISTICA A MONTE ED A VALLE DELL’IMPIANTO NON È DI NOSTRA COMPETENZ

A

RESTITUIRE IL MODULO CONTROFIRMATO PER CONFERMA DEI DATI DI PROGETTO COMUNICATI, SULLA BASE DEI QUALI ELABOREREMO L

A

NOSTRA PROPOSTA DEPURATIVA, APPORTANDO ANCHE EVENTUALI RETTIFICHE E/O CORREZIONI.

INVIARE IL MODULO A: marketing@elbi.it / Fax 049.884161

0

DATA .....................................

TIMBRO E FIRMA ....................................

.

102